Space Capsule House X6

Product Parameters

Building Area: 31 ㎡

Number of guests: 2-4 people

Total power consumption: 10KW

Dimensions: (L) 9500x (W) 3300x (H) 3200mm

Room Type: 2 bedrooms, 1 bathroom

Warranty: 30 years

Production Time: 20 days


Contact Us

01. Suitable for All Terrains, Eco-Friendly Development

No need for a foundation; adaptable to various terrains such as mountains, dense forests, and tidal flats. No damage to vegetation or generation of construction waste, ensuring eco-friendly development.

02. Prefabricated Homes, Quick Setup

20 days of production in the factory, and fully integrated houses are ready to use within 2 hours of installation, with no need for on-site construction or renovation.

03. Instagram-Worthy, Eye-Catching Design

Attracts attention as a must-see spot for social media influencers, blending technology, culture, and nature, naturally drawing in fan traffic.

04. Panoramic View, Return to Nature

Featuring 270° floor-to-ceiling panoramic windows, offering insulation and heat preservation for a cozy experience in nature, allowing you to sleep amidst the scenery and enjoy the pure beauty of nature.

Indoor & Layout

2 bedrooms

Floor plan of a train sleeper car with two beds, a bathroom, and a seating area.

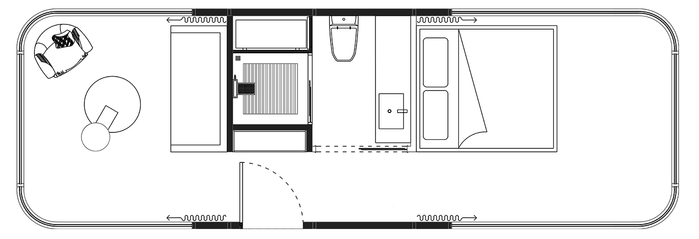
1 bedroom and lounge

Floor plan of a small living space with a sitting area, kitchenette, bathroom, and bedroom.

Our Prefab House AI System

Electric Floor Heating
Automatic Projection Screen
Fresh Air System
Automatic Curtain
Air Conditioner
Sound System
Smart Control Panel
Intelligent Strip Lights
Top view of a modern, compact apartment layout featuring two beds, bathroom, wooden flooring, and minimalist design elements.

Interior

Modern bedroom with beige bed, white bedding, green blanket, mirrored wall, and sheer curtains
Modern living room with white furniture, large window with curtains, and ambient lighting. Features a sofa with green cushions and a round chair.
Modern interior of a small living space with a white couch and green cushions, wooden floors, and ambient lighting. The space extends into a corridor with shelving and leads to a bed area.
Modern bathroom with large illuminated mirror, marble walls, gray countertop, black faucet, and a small potted plant.

Our Cooperated Brand

Logos of various brands including Gree, Fotile, Kohler, Changhong, Chint, Haier, Opple, Midea, Toto, Xiaodu, Yangzi, and Genghe arranged in a honeycomb pattern.
Exploded view of a modular structure showing components such as aluminum shell plates, stainless steel door, hollow LOW-E glass, aluminum window frame, galvanized steel frame, and insulation materials. Interior features include aluminum panels and stone flooring.

Frequently Asked Questions

What is the minimum order quantity for a Space Capsule House? +
The minimum order quantity for our Space Capsule Houses is one set. We believe in catering to the unique needs of each of our clients, whether for personal use, a demonstration, or for commercial purposes. By offering even a single set, we ensure that our innovative living solutions are accessible to all who wish to experience the future of housing today.
How customizable are the capsule houses? +
We offer a range of customization options to cater to individual preferences, from design modifications to different amenity integrations.
Can I view a sample capsule house before placing an order? +
Absolutely! We encourage prospective buyers to visit our showroom to experience our capsule houses firsthand.
What is the lead time for capsule house orders? +
Lead time is typically 10-20 days post-deposit, varying slightly based on order specifics.
How do you ensure the quality and safety of the capsule houses? +
Quality is paramount; we adhere to a strict multi-stage QC process before shipment, and comply with international safety standards.
What support and services do you provide post-installation? +
We offer maintenance services and are available for any further assistance or upgrades, ensuring your satisfaction post-installation.
Contact Info - ODGII

Let’s Connect

Looking for customizable capsule housing solutions for your resort, scenic destination, or tourism project? Get in touch with our team today.

+852 5997 4347
Kegao Industrial Park, Keji East Road, Shishan Town, Nanhai District, Foshan City